Недвижимость в Курчанская. Продается дом в Курчанской Темрюкского района, Расстояние до
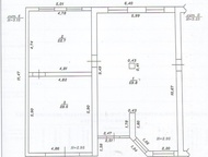
Недвижимость в Курчанская. Продается дом в Курчанской Темрюкского района, Расстояние до Азовского моря 20 км. Центр. Коммерческое использование:используется. Год постройки: 2009, этажность: 2.0, материал стен: кирпич, тип окон: деревянные, крыша: металлочерепица, отопление: индивидуальное газовое, кол-во комнат: 3, общая площадь, кв. м: 235.40, жилая площадь, кв. м: 68.40. Отделка стен: обои, пол: ламинат, состояние: частичная отделка. Планировка уровня/этажа "1-й": прихожая 7.10 кв.м. коридор 6.80 кв.м. кладовая 2.70 кв.м. коридор 1.70 кв.м. котельная 4.30 кв.м. комната 16.70 кв.м. кухня 12.80 кв.м. помещение 6.60 кв.м; лестница. магазин 59.80 кв.м. складское помещение 22.70 кв.м. гараж 28.60 кв.м. Планировка уровня/этажа "2-й": коридор 6.60 кв.м; без отделки. санузел 4.30 кв.м; без отделки. комната 19.30 кв.м; без отделки. комната 19.60 кв.м; без отделки. лоджия 15.80 кв.м; без отделки. Документы кадастровый паспорт, свидетельство, технический паспорт Дополнительно: рассматривает обмен на 4х комн квартиру в Темрюке, обмен на домик на побережье, возле моря Коммуникации: свет, вода, газ, канализация септик, тел., интернет, подъезд асфальт. Код: 71 894
Месторасположение: Курчанская
Контактное лицо
| 
 | 




 
              
              
              
              
              
             
            